<< wróć
Kryg, gm. Lipinki pow. gorlicki woj. małopolskie

Działki w Krygu z potencjałem!

55 000 zł 32 zł PLN/m2
  • Numer oferty: 1551 (IMO)
  • Powierzchnia: 1 719 m2
  • Typ działki: rolno-budowlana
  • Przeznaczenie:
    budownictwo jednorodzinne
  • Forma własności: własność
  • Typ drogi: szutrowa

Opis nieruchomości

Dodaj do notesu Dodane

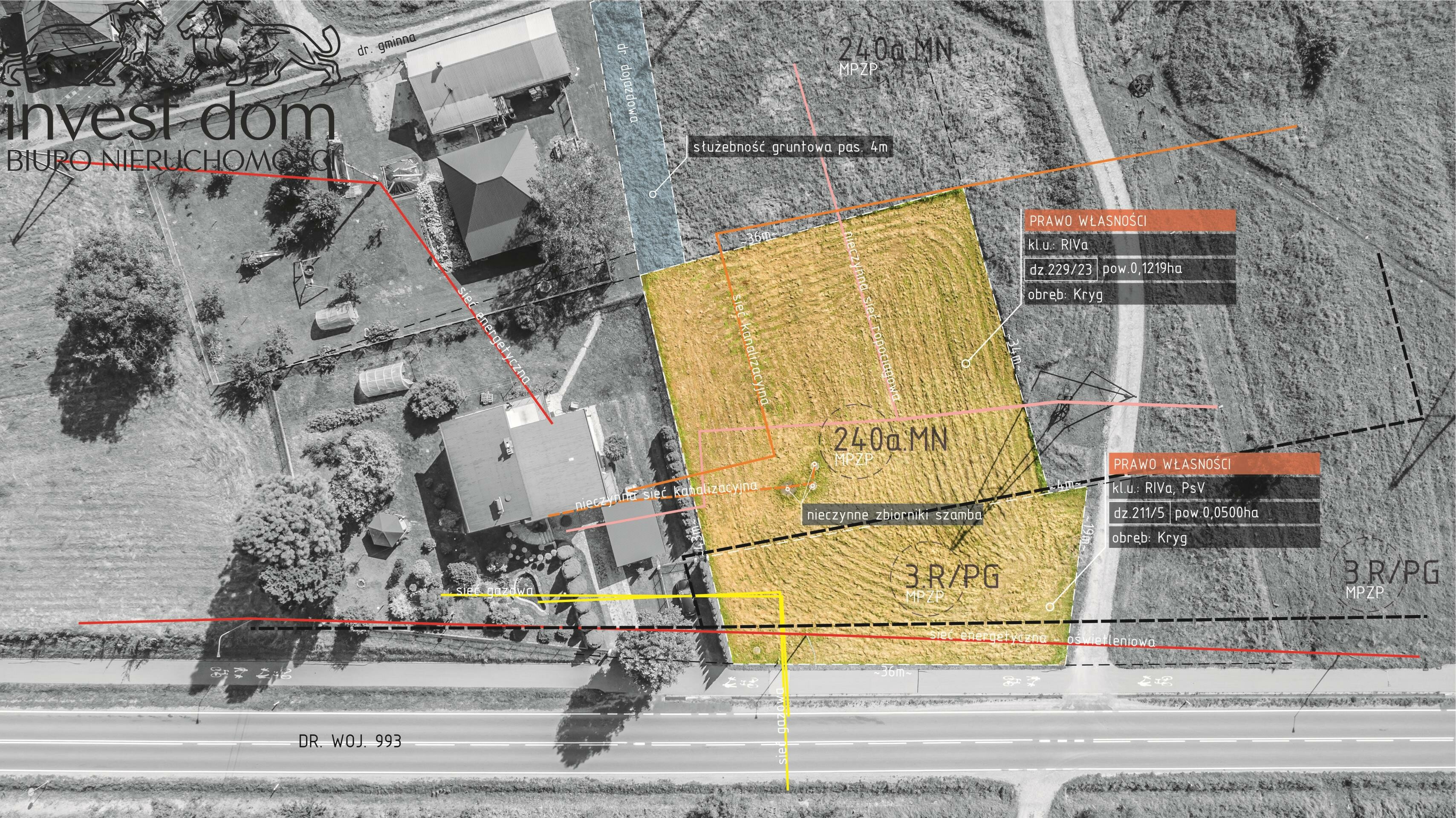
Przedmiotem sprzedaży jest całe prawo własności nieruchomość gruntowej niezabudowanej (za wyłączeniem 3 zbiorników szamba), w składa której wchodzą działki ewidencyjne o numerze: 229/23 o powierzchni 0,1217 ha oraz 211/5 o powierzchni 0,0500 ha, stanowiące łączną powierzchnię 0,1719 ha. Zgodnie z przeznaczeniem w Miejscowym Planie Zagospodarowania Przestrzennego (MPZP), obszar działki 229/13 oznaczony jest symbolem: 240a.MN - (tereny budownictwa mieszkaniowego jednorodzinnego) natomiast obszar działki 211/5 oznaczony jest symbolem: 3.R/PG - (tereny rolne położone w obszarach górniczych ropy naftowej). Dodatkowo cały teren znajduje się w Obszarach Górniczych ropy naftowej, utworzonych stosownymi decyzjami "KRYG - LIBUSZA - LIPINKI" dec. MOŚZNiL Nr DGe/MS/487 - 3248/99 z dn. 16.07.1999r. Całość gruntów stanowi klaso-użytki: RIVa, PsV, zlokalizowane w malowniczej w kiwony miejscowości Kryg, gm. Lipinki, powiat gorlicki, woj. małopolskie. Grunty o nieregularnym, prostokątnym kształcie i średniej wysokości ok. 320 m n.p.m. Teren płaski, doskonale nasłoneczniony, co sprawia, że działka może świetnie się nadawać pod budowę domu całorocznego, letniskowego lub inwestycję rekreacyjną.


Dostęp do sieci infrastruktury technicznej:
- prąd,
- gaz,
- kanalizacja.
- telefon/światłowód


Lokalizacja i dojazd: Nieruchomość położona jest bezpośrednio przy drodze wojewódzkiej nr 993 (trasa Gorlice Nowy Żmigród). Dojazd odbywa się utwardzoną drogą szutrową, obecnie z prawem służebności gruntowej, która w niedługim czasie zostanie przekształcona w drogę gminną. Już teraz gmina regularnie dba o jej utrzymanie m.in. odśnieżanie w sezonie zimowym.


Otoczenie i walory regionu: Okolica zachwyca spokojem i malowniczym krajobrazem. To idealne miejsce, aby odpocząć w bliskim kontakcie z naturą otaczające lasy zapraszają do spacerów i wycieczek, a miłośnicy grzybobrania z pewnością docenią ich bogactwo. Cisza i piękno Beskidu Niskiego sprawiają, że każda wizyta tutaj staje się prawdziwym wytchnieniem od codzienności. Komfort życia Mimo kameralnego charakteru, lokalizacja zapewnia szybki dojazd do miasta w kilkanaście minut można dotrzeć do Gorlic, gdzie znajdują się szkoły, sklepy i wszystkie niezbędne punkty usługowe. To sprawia, że działka łączy w sobie atuty spokojnego miejsca do życia z wygodą codziennego funkcjonowania. Dlaczego warto? działka płaska i dobrze nasłoneczniona, dogodny dojazd, wkrótce z drogą gminną, piękne, ciche i zielone otoczenie, szybki dostęp do miasta i pełnej infrastruktury. To wyjątkowa okazja, aby zainwestować w miejsce, które oferuje zarówno komfort, jak i niepowtarzalny klimat regionu.


Dlaczego warto zainwestować w Krygu? To region łączący piękno przyrody z potencjałem rozwoju. Znajdziesz tu spokój i harmonię, a jednocześnie szybki dostęp do atrakcji turystycznych i ośrodków miejskich. Doskonała lokalizacja blisko natury, a zarazem z dobrym dojazdem do Gorlic, Jasła i Nowego Sącza, atrakcyjne otoczenie sąsiedztwo domów jednorodzinnych i terenów zielonych.


W najbliższej odległości znajdziesz:
220m - przystanek autobusowy,
700m - paczkomat InPost,
1200m - punkt apteczny, ośrodek zdrowia, sklep, przedszkole publiczne,
1500m - Szkoła Podstawowa im. Ignacego Łukasiewicza w Krygu, orlik,
2100m - Kościół rzymskokatolicki Matki Bożej Królowej Polski w Krygu,
2300m - wymiarowy stadion piłkarski w Krygu,
2500m - stacja paliw Kryg,
7100m - ośrodek wczasowo leczniczy w Wapienne,
7500m - kryta pływalnia "Fala" w Gorlicach,
8km - Miasto Gorlice. "Miasto Światła"


CENA NIERUCHOMOŚCI: 55 000 PLN / 0,1712 ha


Proponujemy Państwu również bezpłatną usługę doradztwa kredytowego:
- zweryfikujemy zdolność kredytową,
- pomożemy wybrać najkorzystniejszą ofertę,
- załatwimy wszelkie formalności.


Zapraszam do bezpłatnej prezentacji nieruchomości w terenie, termin i godzina do ustalenia.
Mentor oferty: Kamil +48 508 406 171

Prezentacja nieruchomości odbywa się po wcześniejszym umówieniu terminu z pośrednikiem prowadzącym ofertę.

Treść niniejszego ogłoszenia ma charakter informacyjny i nie stanowi oferty handlowej w rozumieniu art. 66 §1 Kodeksu Cywilnego. Informacje zostały uzyskane od właściciela nieruchomości i mogą ulec zmianie.
Rzuty oraz zdjęcia są bez jakiejkolwiek gwarancji dotyczącej jakości i dokładności wymiarów.
Zapewniamy kompleksową obsługę transakcji – od prezentacji nieruchomości, przez negocjacje, aż po finalizację u notariusza.

Stan prawny nieruchomości został sprawdzony przez biuro nieruchomości.

Dodatkowe informacje

  • Wypis z planu zagosp.